A100 Crane Rail — DIN 536
Heavy duty crane rail for demanding overhead crane runways in ports, bulk handling terminals, steel mills and large industrial operations. Supplied with matched clips and fastening systems.
A100 Crane Rail — Supplied Across Australia
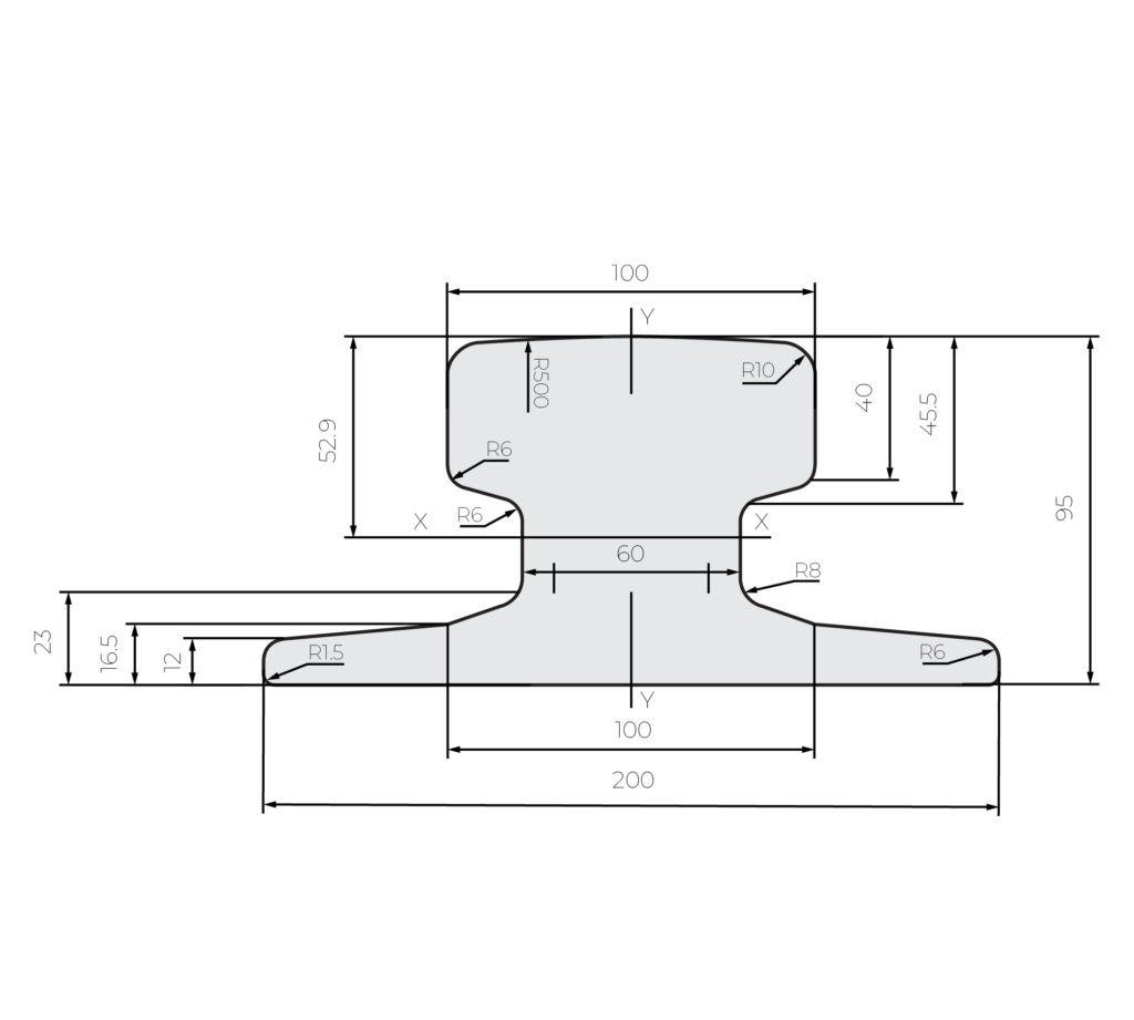
Inform Rail supplies DIN 536 A100 crane rail for heavy duty overhead crane runways and industrial applications across Australia. The A100 sits between the A75 and A120 in the DIN 536 range and is specified for demanding applications where wheel loads are high and the A75 is no longer sufficient.
The A100 features a 100mm head width with the 200mm foot shared with the A75, but with a deeper section and heavier web that significantly increases its load capacity and rigidity. It is commonly found on ship loader runways, container crane systems, heavy fabrication facilities and mining infrastructure. Matched fastening systems including clips, pads, fishplates and sole plates can be supplied to suit the profile.

Where A100 Crane Rail is Used
The A100 is a heavy duty crane rail suited to the most demanding overhead crane applications where high wheel loads require a larger section than the A75. It is specified for ports, bulk materials handling, steel mills and large industrial crane systems. If you are unsure whether A100 is the right profile for your application, send us your crane details and we'll advise.
Compatible Rail Clips for A100
The A100 profile is compatible with welded and bolted crane rail clips for heavy duty applications. Clip selection depends on your installation method, substructure and load requirements.
Not sure which clip suits your A100 installation? Send us your drawings or application details and we'll advise on the correct clip type, size and spacing.
Other Crane Rail Profiles
A100 Crane Rail: Common Questions
What is A100 crane rail used for?
What are the dimensions of A100 crane rail?
What clips are compatible with A100 crane rail?
What is the difference between A100 and A75 crane rail?
Can A100 crane rail be supplied cut to length?
Can Inform Rail supply a complete A100 fastening system?
Need A100 Crane Rail?
Send us your requirements, drawings or project details and we'll come back with a practical supply option.